高效、绿色物流新范式—— 一汽解放J6 Pro平台新能源子母车,先睹为快!

一汽解放2026-03-09
18060

每一次全球能源格局的剧烈波动,都在悄然重塑汽车工业的发展轨迹。从20世纪70年代石油危机催生小排量、高能效车型,到21世纪初对碳排放的全球共识加速电动化转型,历史一再证明:能源安全是驱动交通能源革命的核心变量。当前背景下,或许更多人趋向选购新能源车型,新能源商用车不再仅是环保选项,更成为保障运营稳定性和成本可控性的战略选择。

面对运输效率提升与碳中和目标的双重驱动,一汽解放以前瞻布局持续引领行业变革。2026年新年伊始,在河北石家庄正式发布全新J6 Pro平台及52款新产品,覆盖了传统能源与新能源的车型。其中,备受关注的J6L排半纯电牵引车子母车组合,凭借“子母车互充技术”补能,为资源类短途运输市场带来全新解决方案。

1.png

精准洞察:新能源牵引车市场进入成长期

此前,解放预判:2026年国内新能源牵引车市场有望突破19万辆,一方面资源类短途市场趋于“稳定增长”,另一方面干线运输市场进入“萌芽期”。其中,砂石料和煤炭运输领域表现尤为突出,这两大市场的新能源产品需求均在7万~8万辆区间,大电量、大马力的新能源车型备受青睐。一汽解放依托多年技术深耕,聚焦用户痛点,推出J6L/J6P排半纯电牵引车,精准匹配此类资源市场的需求。

模式创新:“子母车”协同输出降本增效明显

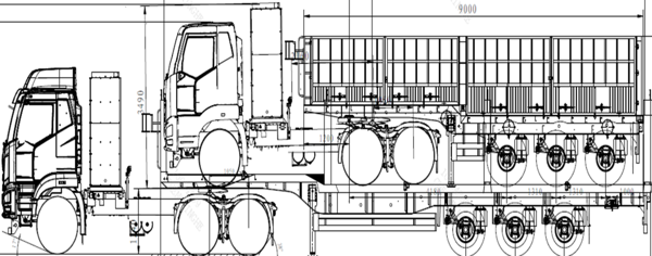
所谓“子母车”,即由一辆“母车”和一辆“子车”组成运输单元。通常在空载状态下,母车搭载子车一同前往货源地,到达后,两车分别装载货物返程,实现“一次出发、双车回程”的高效作业模式,不仅可以快速装卸,也便于两车分别运输至不同目的地。

这一模式显著优化了人力与通行成本。人力方面:传统双车需要4名司机,而子母车仅需3人(去发货地时循环驾驶母车,返程时2人驾驶母车,1人驾驶子车),每年可节省一名驾驶员的人力支出。通行方面:空驶阶段仅母车行驶,子车随行不产生高速通行费,年均可节省子车的过桥费和高速公路费用5000元以上。

2.png

核心亮点:自研互充技术+续航600公里

解放新能源子母车“充换电系列”,便是针对资源市场需求而打造的经典产品。J6L排半纯电牵引车车辆匹配轻量化车架,自重最低9.7吨。搭载硬核动力总成,行业一流双电机+ 4档变速箱,动力提升10%,最大爬坡度实现25%,泥泞湿滑无阻,爬坡脱困轻松,全路况畅行。子车驾驶室宽2390mm,车身小巧更兼容;子车高度小于2850mm,叠加高度小于4200mm,低高通行无限制,适用各类场景需求。

该产品最大突破在于解放自主研发的“子母车互充技术”——电量通过车内高压线束一键切换,母车与子车可实现电量共享,无需额外充电桩即可完成补能。配合400kWh(宁德时代)或405kWh(国轩高科)大容量电池,一次续航直达600km,有效扩大运营半径。使用互充技术时,车辆仪表带显控提醒,操作便捷省心。且插拔连接器寿命可达万次以上,超耐用。

充电效率同样领先:解放新能源子母车互充时间仅需30分钟,相较同级产品大幅缩短等待时间。以单程600km,充电一次1小时计算,全程耗时约10.5小时,比其他同类产品提升运营效率约12.5%。这意味着,其他品牌的子母车每日一趟,解放新能源子母车可实现两日三趟,每年增加运营180次,经济效益显著提升。

4.png3.png

此外,在整车可靠性方面,J6L排半纯电牵引车承袭了解放百万成熟底盘,采用高强钢驾驶室,通过了高温、高寒一系列全维标定试验。包括1.2米水深24小时浸泡+高压水喷洗,专业涉水防护+智能安全控制,品质经得起考验。底盘全防护结构,无死角守护关键部件;电池框架强化设计,并应用热安全强管控,承诺永不起火。

行业协同:构建绿色新能源运输生态圈

产品的高效运营离不开完善的能源补给生态。近年来,一汽解放与宁德时代、启源芯动力、国轩高科、时代骐骥等行业生态伙伴合作,内外兼修打造新能源运输生态圈。以“疆煤入甘”线路为例,启源芯动力已完成整体线路的所有站点选址,哈密至武威段沿路14座充换电站已投用,未来,该模式有望复制至其他资源类场景,满足复杂地形与气候条件下的运营需求。一汽解放还为云贵、新疆等地区的用户设计了专属增强版产品,可供选择。

解放新能源子母车的推出,不仅是产品力的体现,更是对“能源-运输-效率”三角关系的深度重构。通过技术创新与生态协同,一汽解放正在为千千万万物流从业者提供一把穿越“乌卡时代”的钥匙,J6 Pro平台这一高效、绿色物流新范式,代表着更经济、更可控、更具战略安全性的运输未来。

责任编辑:王思思
后发表评论
信息咨询
请输入11位手机号

×
登录
注册
忘记密码